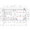
Gatava moduļu pirts 3,4 x 6.7m

Jautāt par preci

€17 000,00

Cenā iekļauts:

  • Pirts konstrukcija 3,4x6,7m. Sienas siltinātas ar 100mm vati, difūzijas membrānu, grīdas siltinājums 140mm, jumta siltinājums. Ārējā pirts apdare - koks, kas apstrādāts pret bojāšanos. 
  • Pirts telpa ir atsevišķi siltināta ar 100mm siltumizolāciju, apses apdarei, vetilāciju. Uz grīdas  -  koka restes vieglai grīdas kopšanai, 
  • saunas durvis  - izgatavotas no rūdīta stikla
  • Pirts bīdāmās durvis - izgatvotas no alumīnija rāmja un stikla. 
  • pirts krāsns 18m3 jaudu un aizsargbarjeru. Kurināšana notiek no atpūtas telpas. 
  • pirts krāsns akmeņi
  • elektroisntilācija (apgaismojums saunā, divas rozetes, divi drošinātāji, drošinātāju skapītis, , slēdži)
  • skurstenis,
  • du&sas vai plauktu vieta
  • ūdens novadīšanas traps,

Papildus informācija

Papildus informācija

Apraksts Cenā nav iekļauta piegāde un stabiņu betonēšana zem pirtiņas...
Veids Moduļa pirts
Ārējais izmērs, m (garums, platums) 3.4x6,7m

Papildpiedāvājums

Jūs varētu interesēt sekojošas preces(s).

 
SAŅEMT PIEDĀVĀJUMU PAR KONSTRUKCIJAS PIEGĀDI UN MONTĀŽU

Par šo preci nav citu jautājumu!